AIRE Atelier d’Architecture | Réalisations > Lycée Colbert de Torcy
1336
portfolio_page-template-default,single,single-portfolio_page,postid-1336,,vertical_menu_enabled,qode_grid_1300,qode-theme-ver-13.9,qode-theme-bridge,disabled_footer_top,disabled_footer_bottom,wpb-js-composer js-comp-ver-5.0.1,vc_responsive

Lycée Colbert de Torcy : aménagement des locaux

Lieu

Sablé-sur-Sarthe

 

Maîtrise d’Ouvrage

Région des Pays de la Loire

 

Fin des travaux

Juin 2015

 

Télécharger

220_ref.pdf

A propos de ce projet

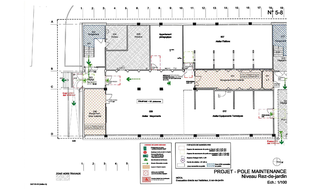
Ces aménagements intérieurs ont permis de dégager l’espace de formation pour le CAP Maintenance. Les locaux principaux comprennent une halle centrale dévolue à la formation en maçonnerie avec divers locaux de stockage, deux espaces avec alvéoles pour la formation en plomberie d’une part et la formation en peinture-finitions d’autre part, complétés par un logement-école, des classes d’arts plastiques et d’informatique.

Maîtrise d’Œuvre

AIRE Atelier d’Architecture
CARRE D’AIRE – Electricité
BE BLIN Didier – Fluides
BE FLK Ingénierie

– Structure

Surfaces H.O.N.

Surface utile :  580,40 m²

Mission et coût

Aménagement de locaux : pédagogiques, CAP maintenance

Mission Complète + O.P.C.

185 000,00 € H.T.